Imagine 80

Apartament nou cu 2 camere - loc de parcare inclus - zona Braytim

ID: P224411 Timisoara, Braytim 187
88.990€
Descriere
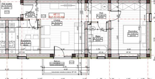
Evand Homes ofera spre vanzare un apartament cu 2 camere, situat in Timisoara, zona Braytim, intr-un imobil nou, finalizat in anul 2025, construit din beton + caramida. Apartamentul se afla la etajul 2 din 3 si dispune de o suprafata utila de 48 m², completata de un balcon de 6 m². Compartimentarea este decomandata, oferind un spatiu luminos, modern si bine organizat.

Proprietatea beneficiaza de 1 loc de parcare si este dotata cu:
- centrala proprie cu incalzire prin pardoseala;
- sistem de climatizare AC;
- tamplarie PVC.

Apartamentul este structurat astfel: Hol, bucatarie inchisa, living generos cu iesire pe balcon, baie, dormitor.

Zona este bine pozitionata, cu acces facil catre mijloace de transport, magazine, ideala atat pentru locuinta proprie, cat si pentru investitie.

Pret: 88.990 € + comisionul standard al agentiei.

Pentru detalii și programarea unei vizionari, contactati-ne la 0774 577 597 – Evand Homes, partenerul dumneavoastra de incredere.
Caracteristici
  • ID:P224411
  • Nr. camere:2
  • Nr. dormitoare:1
  • S. utila:48.00 mp
  • S. balcoane:6.00 mp
  • S. construita:63.60 mp
  • Comp.:Decomandat
  • Etaj:Etaj 2
  • Nr. bucatarii:1
  • Nr. bai:1
  • Nr. balcoane:1
  • Nr. parcari:1
  • An constructie:2025
  • Structura:Beton
  • Tip imobil:Bloc
  • Regim inaltime:P+3
  • Clasa energetica:A
Specificatii
Curent
Apa
Canalizare
Gaz
CATV
Fibra optica
Centrala proprie
Incalzire pardoseala
Aer conditionat
Izolatie Exterior
Vopsea lavabila
Faianta
Parchet
Gresie
Ferestre PVC
Usa intrare Metal
Usa interior Celulare
Apometre
Contor gaz
Interfon
Videointerfon
Localizare
Luca Gusoi
Consultant Imobiliar
Esti interesat de aceasta proprietate ?
Proprietati similare
De vanzare Imagine 4606
2 camere confortabile | gata de mutare | aer conditionat | Calea Sagului
Timisoara, Sagului 79.500€
2 camere 1 baie 50mp
De vanzare Imagine 4422
Apartament spatios cu 2 camere-mobilat si utilat- zona Lipovei
Timisoara, Lipovei 96.990€
2 camere 1 baie 56mp
De vanzare Imagine 4326
Investitie ideala! -Apartament cu 2 camere mobilat si utilat-langa Parcul Dacia
Timisoara, Dacia 85.000€
2 camere 1 baie 54mp
De vanzare Imagine 4264
Apartament cu 2 camere mobilat si utilat -Aradului- ideal pentru investitie!
Timisoara, Aradului 84.500€
2 camere 1 baie 49.80mp
0% comision De vanzare Imagine 4033
Pozitie excelenta -Apartament cu 2 camere mobilat si utilat- Circumvalatiunii
Timisoara, Gheorghe Lazar 98.490€
2 camere 1 baie 53.50mp
De vanzare Imagine 3970
Apartament cu 2 camere - complet mobilat si utilat-Aradului
Timisoara, Aradului 98.990€
2 camere 1 baie 48mp