Imagine 80

Duplex spatios pentru familie | 5 camere | liniste + confort | Mosnita

ID: P253582 Mosnita Noua, Central 412
219.990€
Descriere
O locuinta care imbina spatiul, confortul si intimitatea intr-un mod echilibrat!

Evand Homes va prezinta spre vanzare un duplex Parter + Etaj, cu 5 camere si 2 bai, situat in localitatea Mosnita Noua, intr-o zona centrala, ideala pentru familii. Proprietatea beneficiaza de o pozitionare excelenta, fiind aproape de Mcity, magazine, cresa si scoala, oferind astfel acces rapid la toate facilitatile necesare pentru un stil de viata confortabil si echilibrat.
Imobilul are o suprafata utila de 125,9 mp si este amplasat pe un teren de 297 mp, oferind suficient spatiu atat la interior, cat si in exterior pentru relaxare si activitati in aer liber. Constructia a fost realizata in anul 2021, pe structura de beton, cu zidarie din caramida portanta, ceea ce asigura durabilitate si rezistenta in timp.
Curtea proprie reprezinta un avantaj important, fiind amenajata cu gazon, plante ornamentale si sistem de irigatii, fiind locul perfect pentru relaxare, gradinarit sau petrecerea timpului liber alaturi de cei dragi.
Aceasta proprietate este alegerea ideala pentru cei care isi doresc o locuinta moderna, bine pozitionata, intr-o zona centrala din Mosnita Noua, cu acces facil catre oras si toate punctele de interes.

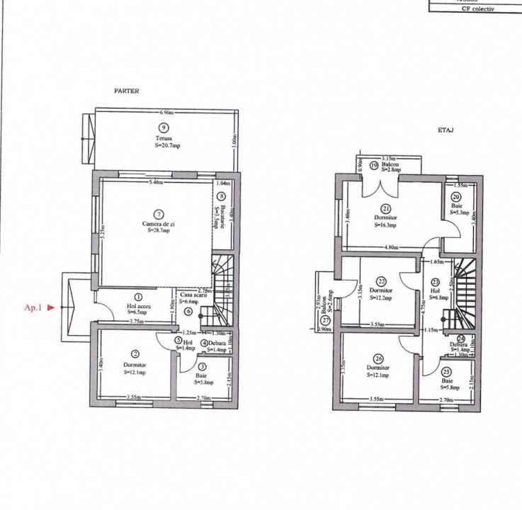
Compartimentare:
- Parter: hol, dormitor, bucatarie cu living open space, baie, debara;
- Etaj: 3 dormitoare (dormitor matrimonial cu dressing), 1 baie;
- Pod: ideal pentru depozitare.

Dotari:
- confort termic cu centrala proprie cu incalzire in pardoseala si termostate ambientale;
- tamplarie PVC tripa;
- curte amenajată cu gazon, plante ornamentale si sistem de irigatii;
- sistem de drenaj apa pluviala;
- casuta de depozitare curte;
- strada in curs de asfaltare;

Utilitati: apa, gaz, curent, canalizare, fibra optica, iluminat stradal.

Pret: 219.990€ + Comision 0%!

Pentru detalii și programarea unei vizionari, contactati-ne la 0774 577 597 – Evand Homes, partenerul dumneavoastra de incredere.
Caracteristici
  • ID:P253582
  • Nr. camere:5
  • Nr. dormitoare:4
  • S. utila:125.90 mp
  • S. terase:20.70 mp
  • S. construita:171.00 mp
  • S. teren:297.00 mp
  • Nr. bucatarii:1
  • Nr. bai:2
  • Nr. balcoane:2
  • Nr. parcari:3
  • Nr. fronturi:1
  • An constructie:2021
  • Structura rezistenta:Beton
  • Regim inaltime:P+1
  • Clasa energetica:A
Specificatii
Curent
Apa
Canalizare
Gaz
Fosa septica
CATV
Fibra optica
Centrala proprie
Incalzire pardoseala
Aer conditionat
Izolatie Exterior
Izolatie Interior
Vopsea lavabila
Faianta
Parchet
Gresie
Ferestre PVC
Usa intrare PVC
Usa interior Celulare
Spatiu depozitare
Dressing
Bucatarie Mobilata
Bucatarie Utilata
Apometre
Contor gaz
Complet mobilat
Curte
Gradina
Localizare
Alin Ivaniciuc
Consultant Imobiliar
Esti interesat de aceasta proprietate ?
Proprietati similare
De vanzare Imagine 4719
Duplex 4 camere -113 mp- zona foarte buna - Mosnita Noua
Mosnita Veche 235.000€
4 camere 2 bai 112.51mp
0% comision Rep. exclusiva De vanzare Imagine 4615
Comision 0% pentru cumparator, direct de la dezvoltator !
Mosnita Noua, Central 214.500€
4 camere 3 bai 112mp
De vanzare Imagine 4479
Duplex 4 camere despartit prin garaj - Mosnita Noua in zona foarte buna
Mosnita Noua 228.990€
4 camere 2 bai 110mp
De vanzare Imagine 4176
Casa individuala cu 5 camere si teren de 600mp - Mosnita Noua
Mosnita Noua 194.990€ + TVA
5 camere 2 bai 120mp
0% comision Rep. exclusiva De vanzare Imagine 3806
Duplex 4 camere Mosnita - Pozitie centrala - Comision 0%
Mosnita Noua 195.000€
4 camere 2 bai 108mp
De vanzare Imagine 3648
Duplex 5 camere - 365 mp teren - Asfalt - Pozitie ideala Mosnita
Mosnita Noua 194.990€
5 camere 2 bai 114.20mp