Imagine 80

Duplex premium cu 4 camere - Cartier Serena 1 - Mosnita

ID: P261839 Mosnita Noua 19
204.990€
Descriere
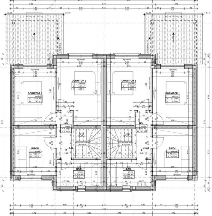
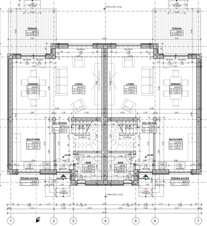
Evand Homes va prezinta spre vanzare un duplex cu 4 camere si 2 bai, situat in localitatea Mosnita Noua, Cartier Serena 1, aproape de scoala, cresa si parc. Proprietatea are o suprafata utila de 105 mp si un teren de 345 mp, construita in 2026, pe structura de beton+caramida.

Compartimentare:
- Parter: living cu bacatarie open space, 1 baie, terasa acoperita;
- Etaj: 3 dormitoare, 1 baie;
- Pod.

Dotari:
- confort termic cu centrala proprie cu incalzire in pardoseala;
- zid dublu intre cele 2 unitati;
- tamplarie PVC cu sticla tripan si folie anti vapori;
- izolatie exterioara de 15 cm;
- finisaje la alegerea clientului;
- 2 locuri de parcare incluse.

Utilitati: apa, gaz, curent, canalizare, fibra optica, cablu TV, drum asfaltat, iluminat stradal.

Pret: 204.990 Euro + comisionul standard al agentiei.
Caracteristici
  • ID:P261839
  • Nr. camere:4
  • Nr. dormitoare:3
  • S. utila:105.00 mp
  • S. terase:11.00 mp
  • S. construita:137.00 mp
  • S. teren:345.00 mp
  • Nr. bucatarii:1
  • Nr. bai:2
  • Nr. parcari:2
  • Front stradal:9.00 m
  • Nr. fronturi:1
  • An constructie:2025
  • Structura rezistenta:Beton
  • Regim inaltime:P+1
  • Clasa energetica:B
Specificatii
Curent
Apa
Canalizare
Gaz
CATV
Fibra optica
Centrala proprie
Incalzire pardoseala
Izolatie Exterior
Vopsea lavabila
Faianta
Parchet
Gresie
Ferestre PVC
Usa intrare PVC
Usa interior Celulare
Apometre
Contor gaz
Nemobilat
Curte
Gradina
Localizare
Alin Ivaniciuc
Consultant Imobiliar
Esti interesat de aceasta proprietate ?
Proprietati similare
De vanzare Imagine 5407
Casa Individuala - teren generos -modern mobilata - Giarmata
Giarmata, Central 199.000€
4 camere 2 bai 150mp
0% comision De vanzare Imagine 5264
Duplex 4 camere cu pozitie excelenta | Zona Serena 1 | Mosnita
Mosnita Noua 177.990€
4 camere 2 bai 104mp
De vanzare Imagine 5229
Duplex 5 camere, 130 mp utili, teren 350 mp, finisaje la alegere – Mosnita
Urseni 209.990€
5 camere 2 bai 130mp
0% comision De vanzare Imagine 5181
COMISION 0% – Duplex cu 4 camere si teren 307 mp, zona excelenta - Mosnita
Mosnita Veche 184.990€
4 camere 2 bai 92.80mp
De vanzare Imagine 4924
Duplex 4 camere | despartit prin casa scarii | intimitate reala | Mosnita
Mosnita Veche 178.990€
4 camere 2 bai 102mp
De vanzare Imagine 4868
Duplex cu 4 camere mobilat si utilat - 120 mp utili - Mosnita
Mosnita Veche 181.990€
4 camere 2 bai 120mp