Imagine 80

Duplex pe parter 4 camere si 2 bai - Mosnita Noua in zona foarte buna

ID: P251971 Mosnita Noua 79
149.990€
Descriere
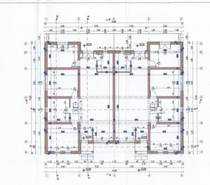
Evand Homes va prezinta spre vanzare o casa tip Duplex P+POD cu 4 camere si 2 bai, situata in localitatea Mosnita Noua, intr-o zona foarte buna, aproape de toate punctele de interes. Proprietatea are o suprafata de 90 mp utili si un teren de 304 mp. Imobilul se vinde finisat la cheie, iar unul dintre avantajele acestui moment este ca se pot alege obiectele sanitare, parchet, usi, gresie, in functie de preferintele clientului. Termen de predare Iunie 2026.

Compartimentare:
Parter: hol, living + bucatarie open space, 3 dormitoare, 2 bai si o terasa acoperita de 14 mp;
Pod spatios pentru depozitare, izolat cu polistiren si finisat cu sapa.

Dotari:
- tamplarie PVC, cu geamuri tripan;
- confort termic cu centrala proprie si incalzire prin pardoseala;
- termostate ambientale pe fiecare incapare;
- curte cu pavaj;
- loc de parcare inclus.

Utilitati:
-apa;
-gaz;
-curent;
-canalizare;
-fibra optica;
-drum pietruit.

Pret: 149.990 euro + comisionul agentiei.

Pentru detalii si programarea unei vizionari, contactati-ne la 0727 744 856 Evand Homes, partenerul dumneavoastra de incredere.
Caracteristici
  • ID:P251971
  • Nr. camere:4
  • Nr. dormitoare:3
  • S. utila:90.00 mp
  • S. terase:14.00 mp
  • S. construita:122.00 mp
  • S. teren:304.00 mp
  • Nr. bucatarii:1
  • Nr. bai:2
  • Nr. parcari:1
  • Front stradal:10.50 m
  • Nr. fronturi:1
  • An constructie:2026
  • Structura rezistenta:Caramida
Specificatii
Curent
Apa
Canalizare
Gaz
CATV
Acces internet
Fibra optica
Centrala proprie
Incalzire pardoseala
Izolatie Exterior
Vopsea lavabila
Faianta
Parchet
Gresie
Ferestre PVC
Usa intrare PVC
Usa interior Celulare
Bucatarie Neutilata
Apometre
Contor gaz
Nemobilat
Curte
Gradina
Localizare
Alina Andrei
Consultant Imobiliar
Esti interesat de aceasta proprietate ?
Proprietati similare
0% comision De vanzare Imagine 4367
Comision 0% Duplex premium cu 3 camere cu posibilitate mansardare - Utvin
Utvin 138.990€
3 camere 1 baie 72mp
De vanzare Imagine 4388
Duplex 3 camere cu toate utilitatile - Zona Valery - Mosnita
Mosnita Noua 130.000€
3 camere 1 baie 70mp
De vanzare Imagine 4155
Duplex cu 4 camere - 100 mp utili - Zona Kaufland - Mosnita
Mosnita Noua 148.990€
4 camere 2 bai 100mp
De vanzare Imagine 4138
Oportunitate Duplex cu 3 camere 2 bai - mobilat si utilat - Mosnita
Urseni 136.990€
3 camere 2 bai 72mp
De vanzare Imagine 4199
Duplex pe parter cu 3 camere si 2 bai - Mosnita Noua - Urseni
Urseni 147.990€
3 camere 2 bai 75mp
De vanzare Imagine 3892
Duplex cu 3 camere - 315 mp de teren - Mosnita Veche - noul Lidl
Mosnita Veche 141.990€
3 camere 2 bai 75mp