Imagine 80

Duplex cu 4 camere mobilat si utilat - Cartier Europa - Mosnita Noua

ID: P244733 Mosnita Noua 188
255.990€ 258.990€
Descriere
Evand Homes va prezinta spre vanzare un duplex Parter + Etaj + Pod amenajat, cu 4 camere si 2 bai, situat in localitatea Mosnita Noua, cartier Europa, o zona foarte cautata, complet construita si bine dezvoltata. Proprietatea se afla foarte aproape de Timisoara, cu acces rapid catre oras, aproape de magazine precum Kaufland si Lidl, precum si alte puncte de interes.

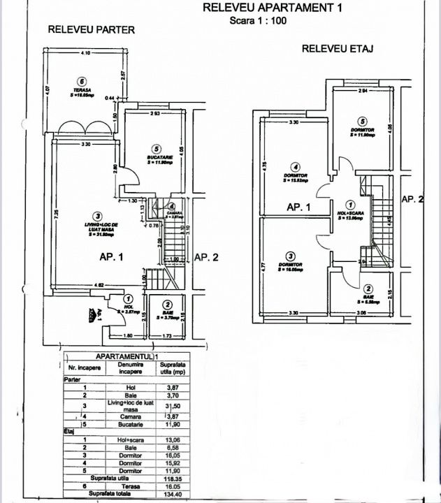
Imobilul are o suprafata utila totala de 162 mp (120 mp + 42 mp pod amenajat) si este amplasat pe un teren de 274 mp. Constructia este realizata in anul 2018, pe structura de beton si caramida, oferind confort, functionalitate si o compartimentare practica, ideala pentru o familie.

Curtea este amenajata complet, cu gazon, zona de gratar, spatiu de relaxare si alte facilitati, fiind perfecta pentru petrecerea timpului liber alaturi de familie si prieteni.

Compartimentare:
- Parter: hol acces, living prevazut cu semineu pe lemne, baie, bucatarie inchisa, camara, terasa acoperita;
- Etaj: 3 dormitoare, baie;
- Podul este amenajat si dispune de o suprafata utila de 42 mp (parchet, confort termin cu incalzire prin calorifere).

Dotari:
- confort termic cu centrala proprie cu incalzire in pardoseala la nivelul parterului, respectiv calorifere la etaj si pod;
- tamplarie PVC tripan;
- usi interioare moderne;
- spatii de depozitare;
- foisor si loc pentru gratar amenajat;
- spatiu de depozitare pentru lemne, echipamente si unelte;
- curte amenajata cu gazon si plante;
- camere de supraveghere video;
- carport si 4 locuri de parcare.

Utilitati: apa, gaz, curent, canalizare, fibra optica, cablu TV, magazine in apropriere, mijloace de transport in comun, drum asfaltat si iluminat stradal.

Pret: 255.990€ - comision 0%!

Pentru detalii și programarea unei vizionari, contactati-ne la 0774 577 597 – Evand Homes, partenerul dumneavoastra de incredere.
Caracteristici
  • ID:P244733
  • Nr. camere:4
  • Nr. dormitoare:3
  • S. utila:120.00 mp
  • S. terase:18.00 mp
  • S. construita:162.00 mp
  • S. teren:274.00 mp
  • Nr. bucatarii:1
  • Nr. bai:2
  • Nr. parcari:4
  • Nr. fronturi:1
  • An constructie:2018
  • Regim inaltime:P+1
  • Clasa energetica:B
Specificatii
Curent
Apa
Canalizare
Gaz
CATV
Fibra optica
Centrala proprie
Incalzire pardoseala
Calorifere
Izolatie Exterior
Izolatie Interior
Vopsea lavabila
Faianta
Parchet
Gresie
Ferestre PVC
Usa intrare PVC
Usa interior Celulare
Spatiu depozitare
Bucatarie Mobilata
Bucatarie Utilata
Apometre
Contor gaz
Complet mobilat
Interfon
Curte
Localizare
Alin Ivaniciuc
Consultant Imobiliar
Esti interesat de aceasta proprietate ?
Proprietati similare
De vanzare Imagine 4719
Duplex 4 camere -113 mp- zona foarte buna - Mosnita Noua
Mosnita Veche 235.000€
4 camere 2 bai 112.51mp
De vanzare Imagine 4479
Duplex 4 camere despartit prin garaj - Mosnita Noua in zona foarte buna
Mosnita Noua 228.990€
4 camere 2 bai 110mp
0% comision De vanzare Imagine 4345
Duplex spatios pentru familie | 5 camere | liniste + confort | Mosnita
Mosnita Noua, Central 219.990€
5 camere 2 bai 125.90mp
De vanzare Imagine 3715
Duplex spatios cu 4 camere in Dumbravita -semineu- la 3 minute de Primarie
Dumbravita, Central 254.990€
5 camere 3 bai 128mp
0% comision De vanzare Imagine 3545
Duplex premium cu 5 camere -zid dublu- pozitie excelenta - Dumbravita
Dumbravita 234.900€ 239.900€
5 camere 2 bai 114mp
0% comision De vanzare Imagine 2627
Comision 0% - Casa individuala - 5 camere - 120 mp - zona Centrala - Giroc
Giroc 248.490€ 248.990€
5 camere 3 bai 120mp