Imagine 80

Duplex 4 camere Mosnita - zid dublu - Cartier Europa - Comision 0%

ID: P242223 Mosnita Noua 1018
217.490€
Descriere
Evand Homes va propune spre vanzare, in exclusivitate, un duplex elegant Parter + Etaj, cu 4 camere si 2 bai, situat in Mosnita Noua – Cartier Europa, intr-o zona apreciata pentru accesibilitate si liniste, foarte aproape de Timisoara.

Proprietatea beneficiaza de o pozitionare excelenta, in imediata apropiere a Kaufland, Lidl si a statiei de transport in comun.

Casa a fost construita in anul 2007 de actualii proprietari, pentru locuire proprie, cu atentie deosebita acordata calitatii executiei si materialelor utilizate. Imobilul are o suprafata utila de 134 mp si este amplasat pe un teren de 325 mp, oferind un echilibru ideal intre spatiul interior si cel exterior.

Constructia este solida, realizata pe structura din beton armat, cu zidarie din caramida de 30 cm, asigurand durabilitate si confort pe termen lung.

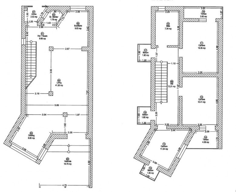
Compartimentare:
- Parter: hol, bucatarie inchisa, living, dining, spatiu de depozitare, baie, terasa acoperita;
- Etaj: 3 dormitoare, 1 baie.

Dotari:
- confort termic cu centrala proprie (centrala noua Viessmann) cu incalzire prin calorifere;
- sistem de climatizare de 24.000 BTU;
- mobilat si utilat;
- perete dublu de 60 cm cu izolatie intre cei doi pereti de 10 cm;
- carport pentru 2 masini;
- tamplarie PVC;
- rulouri PVC;
- sistem de alarma si supraveghere video;
- poarta automatizata;
- curte amenajata cu zona de gratar, casuta de depozitare si vegetatie matura.

Utilitati: apa, gaz, curent, canalizare, fibra optica, drum asfaltat, iluminat stradal.

Pret: 217.500 € - Comision 0%!

Pentru detalii și programarea unei vizionari, contactati-ne la 0774 577 597 – Evand Homes, partenerul dumneavoastra de incredere.
Caracteristici
  • ID:P242223
  • Nr. camere:4
  • Nr. dormitoare:3
  • S. utila:134.00 mp
  • S. terase:20.00 mp
  • S. construita:160.00 mp
  • S. teren:325.00 mp
  • Nr. bucatarii:1
  • Nr. bai:2
  • Nr. balcoane:2
  • Nr. parcari:4
  • Nr. fronturi:1
  • An constructie:2007
  • Structura rezistenta:Beton
  • Regim inaltime:P+1
Specificatii
Curent
Apa
Canalizare
Gaz
CATV
Fibra optica
Centrala proprie
Calorifere
Aer conditionat
Izolatie Exterior
Vopsea lavabila
Faianta
Parchet
Gresie
Ferestre PVC
Rulouri PVC
Usa intrare PVC
Usa interior Celulare
Spatiu depozitare
Bucatarie Mobilata
Bucatarie Utilata
Apometre
Contor gaz
Complet mobilat
Curte
Gradina
Localizare
Alin Ivaniciuc
Consultant Imobiliar
Esti interesat de aceasta proprietate ?
Proprietati similare
De vanzare Imagine 4743
Duplex 4 camere | 104 mp | intimitate + curte amenajata | Mosnita
Mosnita Noua 184.990€
4 camere 2 bai 104mp
De vanzare Imagine 4719
Duplex 4 camere -113 mp- zona foarte buna - Mosnita Noua
Mosnita Veche 235.000€
4 camere 2 bai 112.51mp
0% comision Rep. exclusiva De vanzare Imagine 4615
Comision 0% pentru cumparator, direct de la dezvoltator !
Mosnita Noua, Central 214.500€
4 camere 3 bai 112mp
De vanzare Imagine 4479
Duplex 4 camere despartit prin garaj - Mosnita Noua in zona foarte buna
Mosnita Noua 228.990€
4 camere 2 bai 110mp
0% comision De vanzare Imagine 4345
Duplex spatios pentru familie | 5 camere | liniste + confort | Mosnita
Mosnita Noua, Central 219.990€
5 camere 2 bai 125.90mp
De vanzare Imagine 4176
Casa individuala cu 5 camere si teren de 600mp - Mosnita Noua
Mosnita Noua 194.990€ + TVA
5 camere 2 bai 120mp