Imagine 80

Comison 0% - Duplex despartit prin garaj cu 4 camere - 115 mp utili - Mosnita

ID: P239542 Mosnita Noua 105
199.990€
Descriere
Evand Homes va prezinta spre vanzare un duplex cu 4 camere si 3 bai, situat in Mosnita Noua, aproape de centura, Kaufland. Proprietatea are o suprafata utila de 115 mp si un teren de 300 mp, construita in 2025, pe structura de beton + caramida portanta. Fotografiile cu finisajele exterioare provin de la un imobil identic deja finalizat.

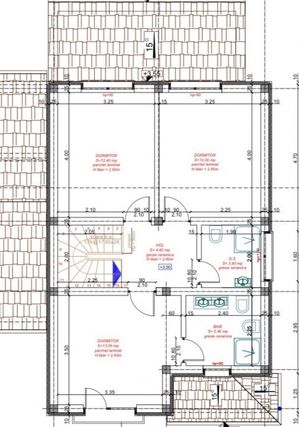
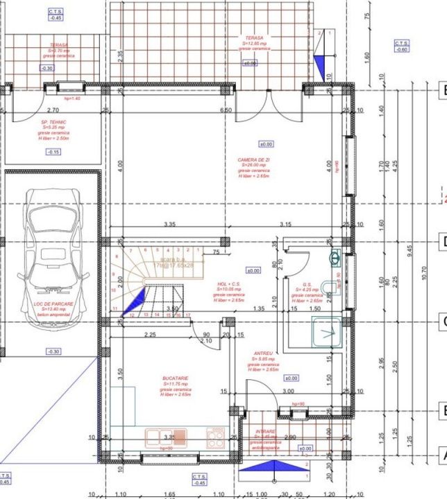
Compartimentare:
- Parter: hol acces, baie, bucatarie inchisa, spatiu depozitare, living cu iesire in terasa acoperita;
- Etaj: 2 dormitoare, baie, dormitor matrimonial cu baie.

Dotari:
- confort termic cu centrala proprie cu incalzire in pardoseala;
- tamplarie PVC cu sticla tripan;
- finisaje la alegerea clientului (gresie, faianta, parchet, usi, grupuri sanitare);
- spatiu de depozitare sub scara;
- 2 locuri de parcare incluse;
- garaj cu camera tehnica;
- curte amenajata.

Utilitati: apa, gaz, curent, canalizare, fibra optica, iluminat stradal.

Pret: 199.990€ - Comision 0%.

Pentru detalii și programarea unei vizionari, contactati-ne la 0774 577 597 – Evand Homes, partenerul dumneavoastra de incredere.
Caracteristici
  • ID:P239542
  • Nr. camere:4
  • Nr. dormitoare:3
  • S. utila:115.00 mp
  • S. terase:20.00 mp
  • S. utila totala:135.00 mp
  • S. construita:158.00 mp
  • S. teren:300.00 mp
  • Nr. bucatarii:1
  • Nr. bai:3
  • Nr. parcari:2
  • Nr. fronturi:2
  • An constructie:2025
  • Structura rezistenta:Beton
  • Regim inaltime:P+1
  • Clasa energetica:B
Specificatii
Curent
Apa
Canalizare
Gaz
CATV
Fibra optica
Centrala proprie
Incalzire pardoseala
Izolatie Exterior
Vopsea lavabila
Faianta
Parchet
Gresie
Ferestre PVC
Usa intrare PVC
Usa interior Celulare
Apometre
Contor gaz
Curte
Gradina
Localizare
Luca Gusoi
Consultant Imobiliar
Esti interesat de aceasta proprietate ?
Proprietati similare
De vanzare Imagine 4743
Duplex 4 camere | 104 mp | intimitate + curte amenajata | Mosnita
Mosnita Noua 184.990€
4 camere 2 bai 104mp
0% comision Rep. exclusiva De vanzare Imagine 4615
Comision 0% pentru cumparator, direct de la dezvoltator !
Mosnita Noua, Central 214.500€
4 camere 3 bai 112mp
De vanzare Imagine 4492
Duplex Premium cu 5 camere - Mosnita- toate utilitatile - zona Noul Lidl
Mosnita Noua 179.990€
5 camere 2 bai 104mp
De vanzare Imagine 4479
Duplex 4 camere despartit prin garaj - Mosnita Noua in zona foarte buna
Mosnita Noua 228.990€
4 camere 2 bai 110mp
0% comision De vanzare Imagine 4345
Duplex spatios pentru familie | 5 camere | liniste + confort | Mosnita
Mosnita Noua, Central 219.990€
5 camere 2 bai 125.90mp
De vanzare Imagine 4176
Casa individuala cu 5 camere si teren de 600mp - Mosnita Noua
Mosnita Noua 194.990€ + TVA
5 camere 2 bai 120mp