Imagine 80

Duplex 4 camere - 94 mp utili - Toate utilitatile - Mosnita - Direct proprietar

ID: P220178 Mosnita Noua 117
154.900€ 154.990€
Descriere
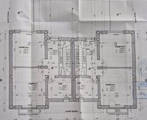
Evand Homes va prezinta spre vanzare un duplex Parter + Etaj cu 4 camere si 2 bai, situat in localitatea Mosnita, aproape de Sala de Sport si Bazinul de inot. Proprietatea are o suprafata utila de 94,1 mp si un teren de 278 mp, construita in anul 2025, pe structura de beton si caramida portanta.

Compartimentare:
- Parter: hol, living, bucatarie, baie, dormitor, terasa;
- Etaj: hol, 2 dormitoare, 1 baie.
- Pod de depozitare.

Dotari:
- confort termic cu centrala proprie cu incalzire in pardoseala si termostate ambientale in fiecare incapere;
- tamplarie PVC tripan cu 3 garnituri de etansare;
- finisaje la alegerea clientului;
- spatiu de depozitare;
- 2 locuri de parcare;

Utilitati: apa, gaz, curent, canalizare, fosa septica.

Pret: 154.900€ - Comision 0%

Pentru detalii și programarea unei vizionari, contactati-ne la 0774 577 597 – Evand Homes, partenerul dumneavoastra de incredere.
Caracteristici
  • ID:P220178
  • Nr. camere:4
  • Nr. dormitoare:3
  • S. utila:94.10 mp
  • S. terase:12.00 mp
  • S. construita:125.00 mp
  • S. teren:278.00 mp
  • Nr. bucatarii:1
  • Nr. bai:2
  • Nr. parcari:2
  • Nr. fronturi:1
  • An constructie:2025
  • Structura rezistenta:Beton
  • Regim inaltime:P+1
  • Clasa energetica:B
Specificatii
Curent
Apa
Canalizare
Gaz
Fosa septica
Centrala proprie
Incalzire pardoseala
Izolatie Exterior
Izolatie Interior
Vopsea lavabila
Faianta
Parchet
Gresie
Ferestre PVC
Usa intrare PVC
Usa interior Celulare
Spatiu depozitare
Apometre
Contor gaz
Curte
Gradina
Localizare
Alin Ivaniciuc
Consultant Imobiliar
Esti interesat de aceasta proprietate ?
Proprietati similare
0% comision De vanzare Imagine 2848
Duplex cu 4 camere - Toate utilitatile + Asfalt - Drumul Boilor
Mosnita Noua 157.990€
4 camere 2 bai 110mp
De vanzare Imagine 2709
Duplex pe parter cu 3 camere si 2 bai - Mosnita Noua
Mosnita Noua 159.990€
3 camere 2 bai 86mp
0% comision De vanzare Imagine 2659
Duplex pe parter mobilat si utilat gata de mutare- Zona Valery - Mosnita Noua
Mosnita Noua 149.990€
3 camere 1 baie 70mp
De vanzare Imagine 2047
Duplex individual 3 camere si 2 bai - Mosnita Noua
Mosnita Noua 139.000€
3 camere 2 bai 96mp
De vanzare Imagine 2276
Duplex cu 4 camere si cu panouri fotovoltaice - Giroc
Giroc 169.490€
4 camere 2 bai 96.60mp
0% comision De vanzare Imagine 2625
Duplex cu 3 camere si 2 bai - Mosnita - Drumul Boilor - Comision 0%
Mosnita Noua 134.990€
3 camere 2 bai 71.40mp