Imagine 80

Duplex 3 camere, teren 250 mp, finisaje la alegere – Albina

ID: P260020 Albina 1
106.990€
Descriere
Daca iti doresti confortul unei case cu curte, la un pret echilibrat, acest duplex este alegerea ideala.

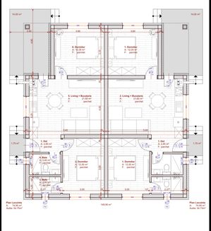
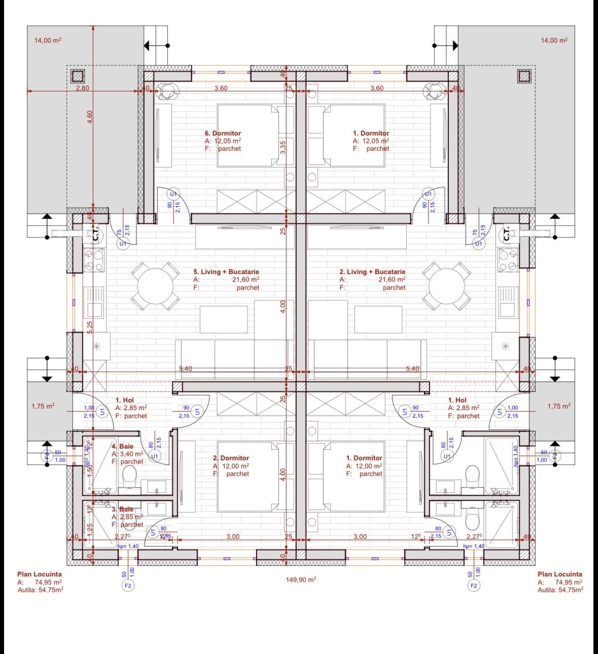
Evand Homes va prezinta spre vanzare un duplex cu 3 camere si 1 bai, situat in Mosnita Noua sat Albina, aproape de statie de mijloc de transport. Proprietatea are o suprafata utila de 60 mp si un teren de 250 mp, construita in 2026, pe structura de beton + caramida.

Compartimentare:
- Parter: hol, baie, dormitor, living open space cu bucatarie si cu iesire in terasa, dormitor;
- Pod: spatiu de depozitare;

Dotari:
- confort termic cu centrala proprie cu incalzire in pardoseala;
- tamplarie PVC cu sticla tripan;
- finisaje la alegerea clientului;
- spatii de depozitare;
- locuri de parcare incluse;

Utilitati: apa, gaz, curent, canalizare, fibra optica.

Pret: 106.990 € + comisionul standard al agentiei.

Pentru detalii și programarea unei vizionari, contactati-ne la 0774 577 597 – Evand Homes, partenerul dumneavoastra de incredere.
Caracteristici
  • ID:P260020
  • Nr. camere:3
  • Nr. dormitoare:2
  • S. utila:60.00 mp
  • S. terase:13.00 mp
  • S. utila totala:73.00 mp
  • S. construita:83.00 mp
  • S. teren:250.00 mp
  • Nr. bucatarii:1
  • Nr. bai:1
  • Nr. parcari:3
  • Nr. fronturi:1
  • An constructie:2026
  • Structura rezistenta:Beton
  • Clasa energetica:B
Specificatii
Curent
Apa
Canalizare
Gaz
CATV
Fibra optica
Centrala proprie
Incalzire pardoseala
Izolatie Exterior
Vopsea lavabila
Faianta
Parchet
Gresie
Ferestre PVC
Usa intrare PVC
Usa interior Celulare
Spatiu depozitare
Apometre
Contor gaz
Curte
Gradina
Localizare
Luca Gusoi
Consultant Imobiliar
Esti interesat de aceasta proprietate ?
Proprietati similare
De vanzare Imagine 2413
Duplex pe parter 3 camere si 1 baie - Bucovat
Bucovat (Remetea Mare) 115.000€
3 camere 1 baie 78.80mp
De vanzare Imagine 1059
Duplex pe parter cu 3 camere - teren de 370 mp - Bucovat
Bucovat (Remetea Mare) 103.990€
3 camere 1 baie 71.80mp
0% comision De vanzare Imagine 4559
Casa individuala - 183 mp utili la rosu - 533 mp - Ianova
Ianova 108.990€ 109.990€
6 camere 2 bai 183mp