Imagine 80

3 camere modern | 67 mp | balcon generos + parcare | Giroc

ID: P259978 Giroc 1
139.490€
Descriere
Imagineaza-ti diminețile intr-un living luminos si serile relaxante pe balconul generos – acest apartament le are pe toate.

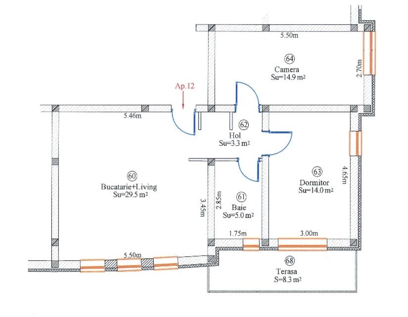
Evand Homes ofera spre vanzare un apartament cu 3 camere, situat in Giroc, zona Neptun, intr-un imobil bine intretinut, finalizat in anul 2020, construit din beton + caramida. Apartamentul se afla la etajul 2 din 3 si dispune de o suprafata utila de 67 m², completata de un balcon de 8 m². Compartimentarea este decomandata, oferind un spatiu luminos, modern si bine organizat.

Apartamentul a fost locuit foarte putin, aproximativ 2-3 luni, fiind practic ca nou.

Proprietatea beneficiaza de loc de parcare si este dotata cu:
- centrala proprie cu incalzire prin calorifere;
- aer conditionat;
- tamplarie PVC;
- interfon;
- parchet, gresie si faianta, avand toate utilitatile necesare pentru confortul zilnic.

Apartamentul se vinde mobilat si utilat, fiind structurat astfel: hol, living cu bucatarie open space si cu loc de luat masa, baie, dormitor cu iesire in balcon, dormitor.

Zona este bine pozitionata, cu acces facil catre mijloace de transport, magazine, parcuri, ideala atat pentru locuinta proprie, cat si pentru investitie.

Pret: 139.490 € + comisionul standard al agentiei.

Pentru detalii și programarea unei vizionari, contactati-ne la 0774 577 597 – Evand Homes, partenerul dumneavoastra de incredere.
Caracteristici
  • ID:P259978
  • Nr. camere:3
  • Nr. dormitoare:2
  • S. utila:66.70 mp
  • S. balcoane:8.30 mp
  • S. utila totala:75.00 mp
  • S. construita:88.34 mp
  • Comp.:Decomandat
  • Confort:1
  • Etaj:Etaj 2
  • Nr. bucatarii:1
  • Nr. bai:1
  • Nr. balcoane:1
  • An constructie:2020
  • Structura:Beton
  • Tip imobil:Bloc
  • Regim inaltime:P+3
  • Clasa energetica:A
Specificatii
Curent
Apa
Canalizare
Gaz
CATV
Fibra optica
Centrala proprie
Calorifere
Aer conditionat
Izolatie Exterior
Vopsea lavabila
Faianta
Parchet
Gresie
Ferestre PVC
Jaluzele Verticale
Usa intrare Metal
Usa interior Celulare
Dressing
Bucatarie Mobilata
Bucatarie Utilata
Apometre
Contor gaz
Complet mobilat
Interfon
Lift
Localizare
Luca Gusoi
Consultant Imobiliar
Esti interesat de aceasta proprietate ?
Proprietati similare
De vanzare Imagine 4283
Oportunitate! Apartament cu 2 camere-loc de parcare inclus- bloc nou -Aradului
Timisoara, Aradului 119.990€
2 camere 1 baie 58.54mp
0% comision Rep. exclusiva De vanzare Imagine 4229
Oportunitate investitie imobiliara: etaj intreg cu 3 apartamente - Comision 0%
Mosnita Noua 150.000€ + TVA
5 camere 3 bai 138.80mp
0% comision De vanzare Imagine 4209
Penthouse cu 3 camere și terasa de 30 mp - zona Braytim
Giroc 124.900€
3 camere 1 baie 70mp
De vanzare Imagine 4050
Apartament spatios cu 3 camere si 2 bai -complet mobilat si utilat- Lipovei
Timisoara, Lipovei 133.990€
3 camere 2 bai 72mp
0% comision De vanzare Imagine 4097
Oportunitate! Apartament cu 3 camere- bloc izolat termic- Lipovei
Timisoara, Lipovei 119.990€ 120.990€
3 camere 1 baie 68mp
De vanzare Imagine 3835
Apartament cu 3 camere mobilat si utilat - Aradului- la 3 minute de Iulius Mall
Timisoara, Aradului 129.500€ 134.900€
3 camere 2 bai 77mp